
KIP Verwaltung GmbH, Neuburg a.d. Donau
emce architekten MC Planungsgesellschaft mbH & Co.KG, Tübingen
GOLDBECK Ost GmbH, Treuen
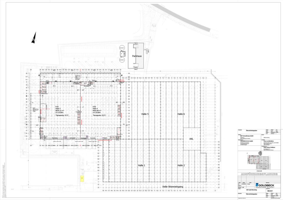
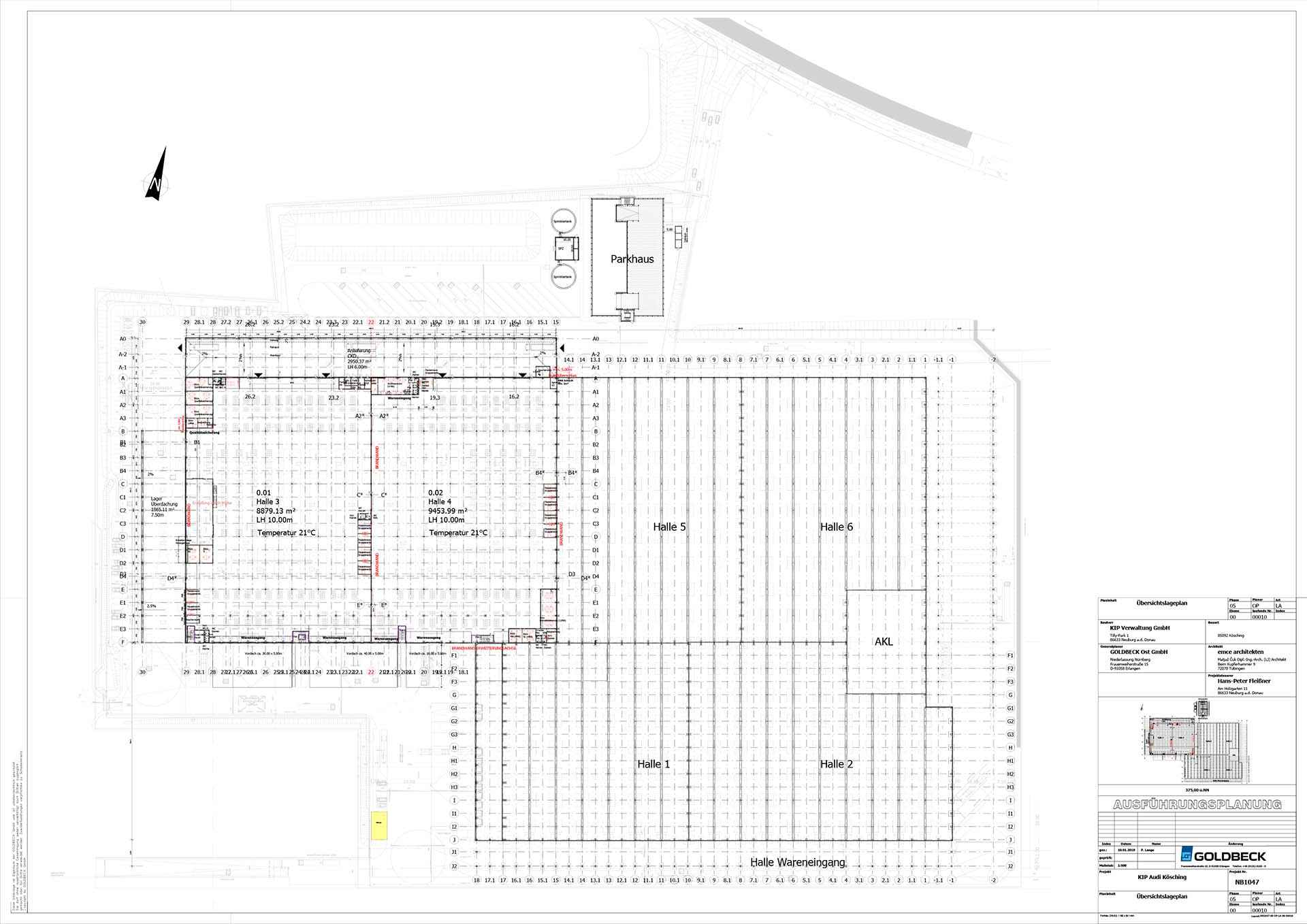
Hallenkomplex:
Gesamtlänge: ca. 388 m
Gesamtbreite: ca. 241 m
Höhe max: ca. 21 m
Rampe:
Gesamtlänge: ca. 150 m
Steigung: ca 6%
Skywalk:
Brücke Länge: ca. 28 m
Skywalk außen: ca 48 m (abgehängt von Fassadenstützen)
Skywalk innen: ca. 144 m (vom Dachtragwerk abgehängt)
Parkhaus:
Anzahl Stellplätze: 463 PKW-Stpl. auf 14 Halbgeschoss-Ebenen
45 Fahrrad-Stpl. in Ebene 2
Dachtragwerk:
Stahltonnage: ca 520 to (F30-Beschichtung)
Die KIP Verwaltung GmbH hat im Gewerbepark Kösching eine Logistikanlage auf einer Grundfläche von ca. 112.000 m² errichtet. Mit der Realisierung der Baumaßnahmen wurde der Generalunternehmer GOLDBECK GmbH und die Firma BGS Erd- und Straßenbau GmbH beauftragt.
Das neue Logistikzentrum besteht aus sechs geschlossenen, miteinander verbundenen, nur durch Brandwände separierten Hallen, mehreren offenen, überdachten Bereichen, Verwaltungsbauten und einem alleinstehenden Parkhaus das über eine Fußgängerbrücke und einen Skywalk erreichbar ist. Der Hallenkomplex misst im Grundriss ca. 380 m x 240 m. Die sechs Hallen der Logistikanlage zusammen mit den offenen, überdachten Bereichen und mehrgeschossigen Verwaltungsbauten erstrecken sich über eine Nutzfläche von rund 120.000 m². Die Hallen 3 und 4 sind eingeschossig, die Hallen 1 und 2 bzw. 5 und 6 dagegen zweigeschossig geplant, um die erforderliche Größe für den Mieter Audi und VW, die hier zwei Logistikgewerke mit insgesamt 700 Mitarbeitern zusammenlegen wollen, zu gewährleisten.
Im Erdgeschoss der Hallen befinden sich Warenein- und -ausgangszonen als Kalthallen und Tiefhöfe mit LKW-Docks, Büro- und Sozialräume, eine Schreinerei, Stapler-Ladestationen sowie Förder- und Kommissionierbereiche. Die Obergeschosse dienen als Lager. Von dort können die Ersatzteile über Lastenaufzüge und mit Förderfahrzeugen über eine Rampe zum Kommissionieren ins Erdgeschoss gebracht werden. Für die Verwaltung sind drei- bzw. viergeschossige Büroeinbauten realisiert. Der Zugang vom Parkhaus in die Halle erfolgt über eine Fußgängerbrücke, die als Skywalk an und in der Halle weitergeführt wird.
Die Hallen bestehen aus Stahlbetonstützen mit einem Stahl-Dachtragwerk. Die Stahlkonstruktion des Daches des doppelstöckigen Ausbaus ist mit Brandschutzbeschichtung vorgesehen, um die geforderte Feuerwiderstandsanforderung R30 zu erfüllen. Die weitgespannten Zwischendecken der zweigeschossigen Hallen sind in Stahlbetonbauweise errichtet und für den Verkehr aus Gabelstaplern ausgelegt.
Die Logistikanlage liegt im Erdbebengebiet der Zone 1.
Das Mitarbeiter-Parkhaus wurde im eigenen Goldbeck-Parkhaus Split-Level-System aus Stahlbeton-Deckenplatten, Stahlverbundträgern und Stahlstützen erstellt, einer von Goldbeck eigens für den Parkhausbau weiterentwickelten Bauweise.
Die Übergabe des eingeschossigen Hallenbereiches an den Kunden erfolgte im November 2019 und der zweigeschossigen Bereiche wie geplant im Oktober 2020.